LeAnn Coleman – D.R. Horton
Communities
Floorplans
Smart Home
Mortgage Calculator
Loan Application
Horton Homeowners
Privacy Policy
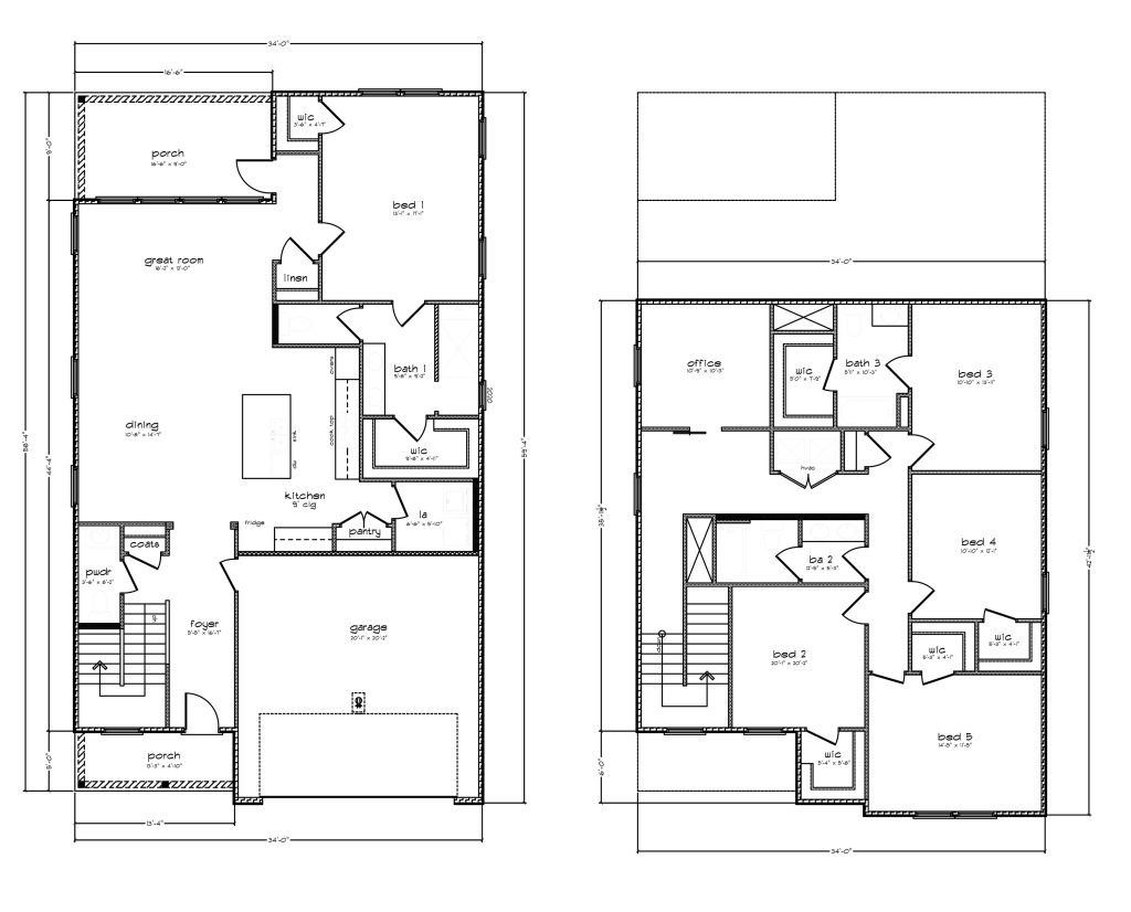
The Brayden
5 Bedrooms / 3.5 Baths
2745 sq.ft.