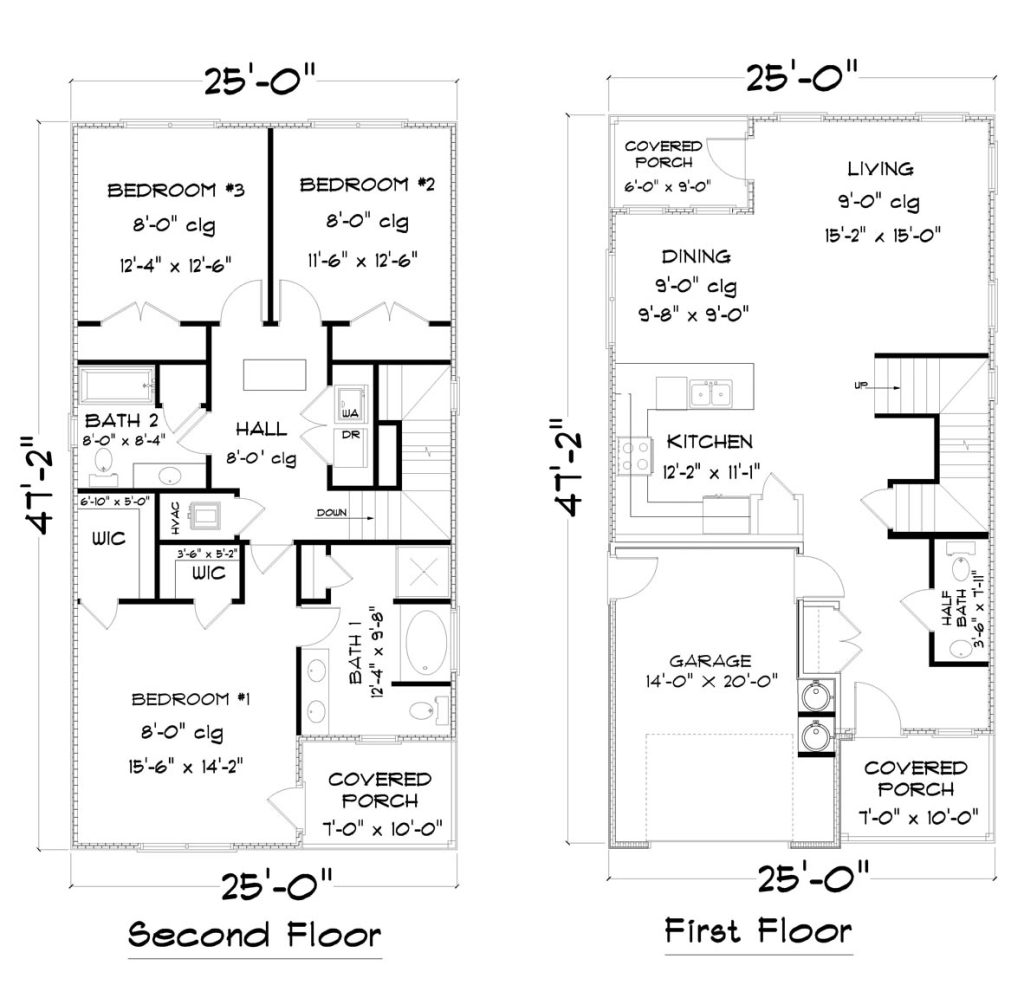
LeAnn Coleman – D.R. Horton
3 Bedrooms / 2.5 Baths
1846 sq.ft.
***Click to view Matterport floorplan***