LeAnn Coleman – D.R. Horton
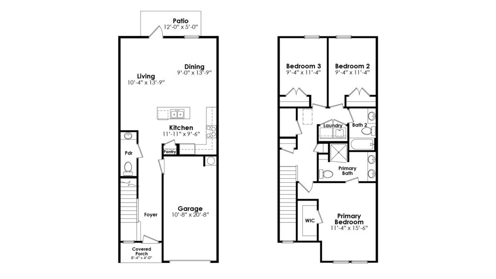
3 Bedrooms / 2.5 Baths
1460 sq.ft.
***Click to view Matterport floorplan***